Innovative Home Designs for
Every Lifestyle
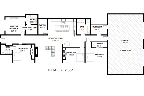
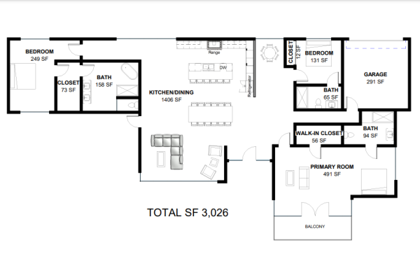
Home Development Solutions offers a diverse range of home plans designed to meet the unique needs of our clients. Whether you’re looking for a spacious family home or a cozy single-level design, we have a plan for you. Explore our collection, and let us help you customize the perfect home for your lifestyle.
























